オフィスプラン - トレーラーハウスMIKAWA - 愛知県三河地区 - トレーラーハウス専門店
ホーム > 商品プラン > オフィスプラン
line line
youtube youtube
展示場予約 展示場予約

Plan

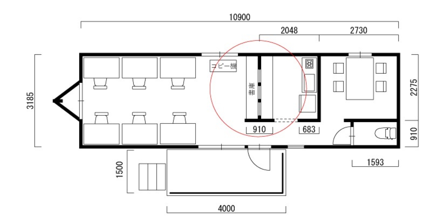
オフィスプラン

Office Plan Style

オフィスプランスタイル

地元に根付いた住宅・不動産の会社だからこそ、設計から建築、外構、引っ越し業者の手配まで全てをワンストップでサポートいたします。

お客様の「お金」「時間」「労力」を最小限に抑え、やらなければならないことを解決するのが私たちの強みになります。

トレーラーハウスMIKAWAでは設計から建築までの全てがワンストップで完結するため、中間マージン等の費用が一切発生しません。

トレーラーハウスに特化している会社だからこそできる、店舗デザインや間取り設計を提案いたします。

オフィスプランスタイル
オフィスプランスタイル
オフィスプランスタイル
  • 宿泊施設・リゾートプラン
  • オフィスプラン
  • カフェプラン
  • サロンプラン
オフィスプランスタイル

Business Plans and Pricing